581 views

アパート(コーポ光)

沿線・最寄り駅 徒歩
バス
所在地 間取り 専有面積 築年月 賃料
管理費等
敷金
礼金
JR石北本線
北見
18分
-分
北見市北7条西5丁目2番地2 ワンルーム 21.87m² 1988/07 2.5万円
-
2.5万円
-
%e5%8c%97%e8%a6%8b%e3%82%b3%e3%83%bc%e3%83%9d%e5%85%89202%e5%8f%b7%e5%ae%a4 %e5%8c%97%e8%a6%8b%e3%82%b3%e3%83%bc%e3%83%9d%e5%85%89202%e5%8f%b7%e5%ae%a4
Dscf5389 Dscf5389
Dscf5398 Dscf5398
玄関
Dscf5400 Dscf5400
洋室
Dscf5403 Dscf5403
キッチン
Dscf5402 Dscf5402
温水器
Dscf5397 Dscf5397
トイレ
Dscf5404 Dscf5404
浴室
交通機関

JR石北本線 北見 徒歩18分

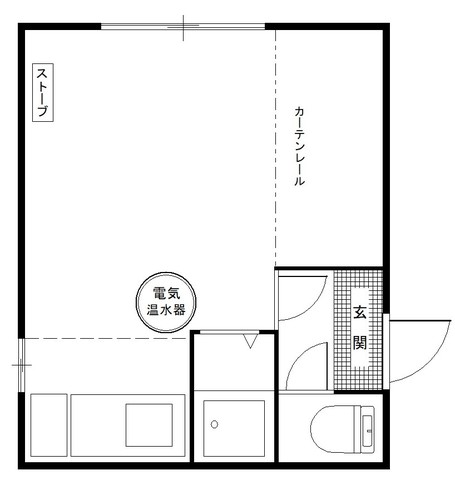
間取詳細 10帖
建物構造 木造 所在階 / 階数 2階 / 2階建
駐車場 総戸数 -
主要採光面 北東 バルコニー面積 -
住宅保険 20,000円 契約期間 2年
引渡 即引渡し可 現況 空室
設備・条件 ガス, 電気給湯, バス・トイレ別, TVアンテナ, 石油暖房, プロパンガス, 温水洗浄便座, 角部屋, 即入居可, 照明, 室内洗濯機置場
備考

物件番号 502736 取引態様 仲介
取扱会社

有限会社 藤原工産

字潮見298番地11


お問い合わせ

有限会社 藤原工産 へのお問い合わせ

メールでお問い合わせ

メールアドレスか電話番号どちらか必須です

電話でお問い合わせ

物件番号 502736(コーポ光)
電話番号 0152-44-1740
取扱店 有限会社 藤原工産
北海道網走市字潮見298番地11
営業時間:8:30 - 17:30
定休日:土曜日・日曜日